Sectional cuts are marked by hatches in the 2D preview. How these are changed for each part of an assembly can be configured via the following settings:
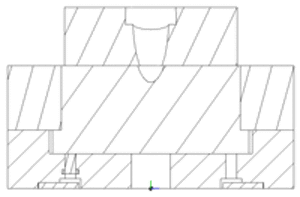
Possible hatch angles: 0.00,10.00,20.00,30.00
In the example, the first hatch angle is therefore 45° (+0°), the second 35° (-10°), the third 55° (+20°) and the fourth 25° (-30°).



![[Note]](https://webapi.partcommunity.com/service/help/latest/pages/it/installation_ecatalogsolutions/doc/images/note.png)