I disegni possono essere ampliati con layer BMG in conformità alla norma DIN 4003. Durante l'esportazione di DXF/DWG 2D, questi layer trasferiscono informazioni importanti per la fornitura di utensili e il BIM, tra le altre cose.
Prerequisito: classificazione del SNC con dati corrispondenti
In PARTdesigner, nella finestra di aggancio della storia 3D [3D History], fare clic sul comando del menu contestuale Nuovo disegno 2D.... [New 2D drawing...]
-> Si apre la finestra di dialogo del disegno 2D [2D drawing].
Selezionare l'opzione Utente in Visualizzazione [View].
Inserire ad esempio DIN 4000 / BMG Layer in Nome [Name].
Selezionare l'opzione BMG in Gruppo di livelli [Layer group].
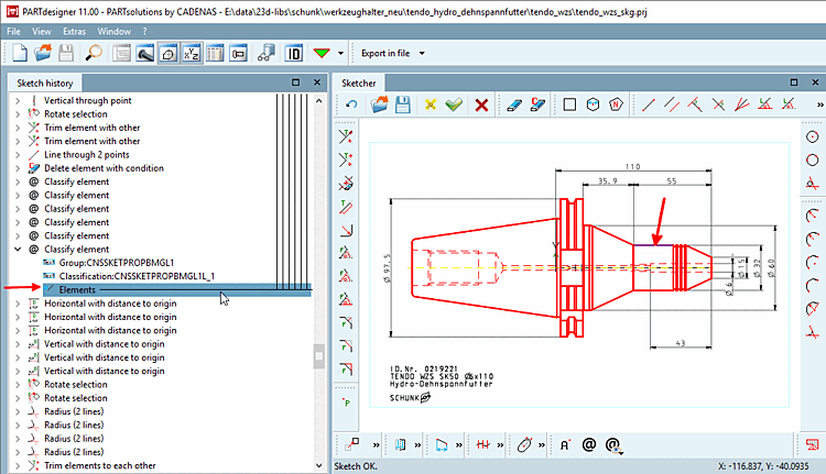
-> Si apre lo Sketcher. (Il Il gruppo di pulsanti di testo
è visibile nei disegni.)
Impostare il disegno in Sketcher come di consueto.
Ora eseguite la classificazione.
Situazione iniziale: una linea non ancora classificata deve essere classificata.
Selezionare la linea desiderata.
-> La linea viene ora visualizzata nel colore di marcatura standard.
Fare clic sull'icona Classifica elemento [Classify element]
.
-> Si apre la finestra di dialogo corrispondente per la determinazione del gruppo [Group] e della classificazione [Classification]. Effettuare le selezioni necessarie (in questo caso designazione dell'utensile e LAYER_1 ).
Non appena si seleziona un layer, il risultato atteso (colore, tipo e spessore della linea) viene visualizzato immediatamente.
Infine, confermare la selezione facendo clic su .
-> Nella cronologia degli schizzi [Sketch history], la relazione tra elemento di forma e classificazione è rappresentata da una freccia rossa.
![[Nota]](https://webapi.partcommunity.com/service/help/latest/pages/it/partwarehouse/doc/images/note.png)
Nota A seconda del layer, le linee vengono visualizzate in modo diverso per colore, tipo(solida, tratteggiata, tratteggiata) e spessore (sottile, normale, spessa) (sia in PARTdesigner che successivamente in PARTdataManager nella derivazione 2D [2D derivation] ). Informazioni dettagliate sui singoli layer sono disponibili nella specifica DIN SPEC 69874-2.
Utilizzando Nascondi elementi classificati [Hide classified elements]
è possibile nascondere tutti i livelli di un gruppo o singoli livelli
Mostra e nascondi i livelli per verificare se tutto è impostato correttamente
è.
-> Si apre l'area di dialogo corrispondente.
Attivare/disattivare la casella di controllo per i gruppi o i livelli desiderati.
Infine, fare clic su Applica modifiche [Accept changes] nello Sketcher. [Sketcher]
-> Il disegno 2D aggiuntivo con le informazioni sul layer viene visualizzato nella cronologia 3D [3D History].
Definire in PARTproject -> Modifica progetto [Edit project] -> Pagina della scheda Derivazione 2D [2D derivation] la visualizzazione o l'output del disegno 2D.
-> Il disegno aggiuntivo viene visualizzato sotto la voce Derivazione 2D [2D derivation].
Quando si esporta un DXF/DWG 2D, vengono esportati anche i layer BMG.


![Finestra di dialogo "Nuovo disegno 2D [New 2D drawing]](https://webapi.partcommunity.com/service/help/latest/pages/it/partwarehouse/doc/resources/img/img_52b7a8cac7b04ba8b6d5c254af8cbdd5.png)









![Pagina della scheda Derivazione 2D [2D derivation]](https://webapi.partcommunity.com/service/help/latest/pages/it/partwarehouse/doc/resources/img/img_8b2cb49f714042968e2de757acbf5126.png)
