Zeichnungen können mit BMG Layern nach DIN 4003 erweitert werden. Beim Export von 2D DXF/DWG übergeben diese Layer wichtige Informationen u.a. für Werkzeugbereitstellung und BIM.
Voraussetzung: CNS Klassifikation mit entsprechenden Daten
Klicken Sie im PARTdesigner, im Dockingfenster 3D Historie [3D History] auf den Kontextmenübefehl Neue 2D-Zeichnung... [New 2D drawing...].
-> Das Dialogfenster 2D-Zeichnung [2D drawing] wird geöffnet.
Selektieren Sie unter Ansicht [View] die Option User.
Tragen Sie unter Name z.B. DIN 4000 / BMG Layer ein.
Selektieren Sie unter Layer Gruppe [Layer group] die Option BMG.
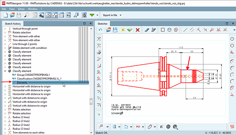
-> Der Sketcher wird geöffnet. (Die Buttongruppe Text
ist bei Zeichnungen sichtbar.)Bauen Sie die Zeichnung im Sketcher wie gewohnt auf.
Nehmen Sie nun die Klassifizierung vor.
Ausgangssitutation: Eine noch nicht klassifizierte Linie soll klassifiziert werden.
Selektieren Sie die gewünschte Linie.
-> Die Linie wird nun in der Standard-Markierungsfarbe angezeigt.
Klicken Sie auf das Icon Element klassifizieren [Classify element]
.
-> Das entsprechende Dialogfenster zur Bestimmung von Gruppe [Group] und Klassifikation [Classification] wird geöffnet. Nehmen Sie die gewünschten Auswahlen vor (hier Werkzeugbezeichnung und LAYER_1.
Sobald Sie einen Layer ausgewählt haben, wird sofort das zu erwartende Ergebnis (Linienfarbe, -typ, - stärke) angezeigt.
Bestätigen Sie Ihre Auswahl abschließend mit Klick auf .
-> In der Sketch Historie [Sketch history] wird die Beziehung zwischen Formelement und Klassifikation per rotem Pfeil repräsentiert.
![[Hinweis]](https://webapi.partcommunity.com/service/help/latest/pages/de/partsolutions_user/doc/images/note.png)
Hinweis Je nach Layer werden die Linien in Farbe, Typ (durchgezogen, gestrichelt, Punkt-Strich) und Stärke (dünn, normal, dick) unterschiedlich angezeigt (sowohl in PARTdesigner als auch später in PARTdataManager in der 2D-Ableitung [2D derivation]). Detaillierte Informationen zu den einzelnen Layern finden Sie in der Spezifikation DIN SPEC 69874-2.
Mittels Klassifizierte Elemente verstecken [Hide classified elements]
können Sie alle Layer einer Gruppe oder einzelne
Layer ein- und ausblenden und so prüfen, ob alles richtig gesetzt
ist.
-> Der entsprechende Dialogbereich wird aufgeklappt.
Aktivieren/deaktivieren Sie bei den gewünschten Gruppen oder Layern das Auswahlkästchen.
Klicken Sie im Sketcher abschließend Änderungen übernehmen [Accept changes].
-> Die zusätzliche 2D-Zeichnung mit den Layerinformationen wird in der 3D Historie [3D History] angezeigt.
Hinterlegen Sie in PARTproject -> Projekt bearbeiten [Edit project] -> Registerseite 2D-Ableitung [2D derivation], dass die 2D-Zeichnung dargestellt bzw. ausgegeben wird.
-> Die zusätzliche Zeichnung wird unter 2D-Ableitung [2D derivation] angezeigt.
Beim Export von 2D DXF/DWG werden die BMG-Layer ebenfalls exportiert.


![Dialogfenster "Neue 2D-Zeichnung [New 2D drawing]"](https://webapi.partcommunity.com/service/help/latest/pages/de/partsolutions_user/doc/resources/img/img_ef2deecd8935406cb44de4de3634dd32.png)









![Registerseite 2D-Ableitung [2D derivation]](https://webapi.partcommunity.com/service/help/latest/pages/de/partsolutions_user/doc/resources/img/img_b813830540f444ac93ba936157ead258.png)
